一戸建 中野貸家 相模原市南区西大沼1丁目 9.8万円 | 信興開発

HOME

会社概要

採用情報

個人情報について

  1. HOME>
  2. 物件一覧>
  3. 一戸建 中野貸家 相模原市南区西大沼1丁目

一戸建 中野貸家

2026-02-28 11:03:15

JR横浜線「古淵」駅 徒歩8分

相模原市南区西大沼1丁目

賃貸価格 9.8万円

東南角地で日当たり良好!カウンターキッチンで家族との会話も弾む。

資料請求・お問い合わせ

バス・トイレ別、室内洗濯機置場、フローリング、システムキッチン、プロパンガス、駐車場あり 当社管理

 

所在地 相模原市南区西大沼1丁目
交通 JR横浜線「古淵」駅 徒歩8分
価格 9.8万円
物件番号 57415
物件種別 一戸建
敷金 2ヶ月
礼金 なし
保証金 なし 
専有面積 57.51㎡ 
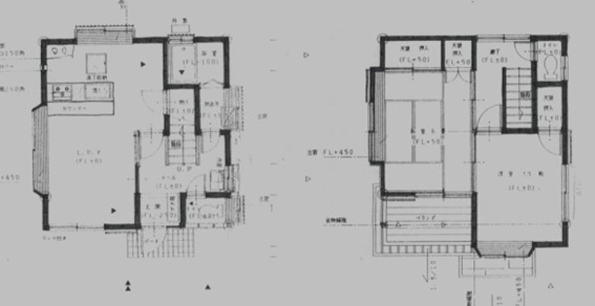
間取 2LDK ( 和室6帖 洋室5.5帖 )
建物構造 木造 2階建  
完成 1994年6-月築 
現況 賃貸中 
駐車場 敷地内にあり(無料) 
管理費 なし 
共益費 3,000円/月 
権利金 なし 
更新料 なし 
火災保険料 13,000円/2年 
その他費用 家賃保証会社加入要:初回賃料等総額の100%、月額保証料2%~/24時間サービス月額2,200円/鍵交換代有 
契約期間 2年  
引渡し時期 未定 
建物名称 中野貸家 
取引態様 代理 
学区 大野台小学校 / 大野台中学校 

相模原市南区西大沼1丁目周辺の地図です。※ 参考程度にご利用ください。

PAGETOP